Wohnen-KreativMühle-Mücheln

KreativMühle // Mücheln (Geiseltalsee)

In der historischen Wassermühle „Kreativmühle“ in Mücheln sollten Ferienwohnungen entstehen, die den rauen Charakter des Bestands bewahren – und zugleich zeitgemäßen Komfort ermöglichen. Die Herausforderung lag darin, die vorhandene Substanz nicht zu überformen, sondern sie bewusst weiterzudenken: Konstruktion sichtbar lassen, Räume ruhig zonieren und eine Atmosphäre schaffen, die selbstverständlich wirkt – klar, reduziert und mit spürbarem Bezug zur Geschichte des Ortes.  …

Fertigstellung: 04/2018
Fotos: © Z’sAM Raumkonzepte

Zeitraum 2016–2019
Ort Mücheln, Sachsen-Anhalt
Nutzfläche ca. 232 m²
Nutzergruppe Feriengäste, Kurzzeitwohnen
Leistungsumfang LPH1-3,5
Schwerpunkte Bestand, Ferienwohnen, Raumstruktur
Ziel / Besonderheiten Historischer Kontext, Raumfluss, Aufenthaltsqualität
CTA-Button
FEWO1-Deckblatt
FEWO1-Foto1
FEWO1-Foto2
FEWO1-Foto3
FEWO1-Bestand1
FEWO1-Bestand3
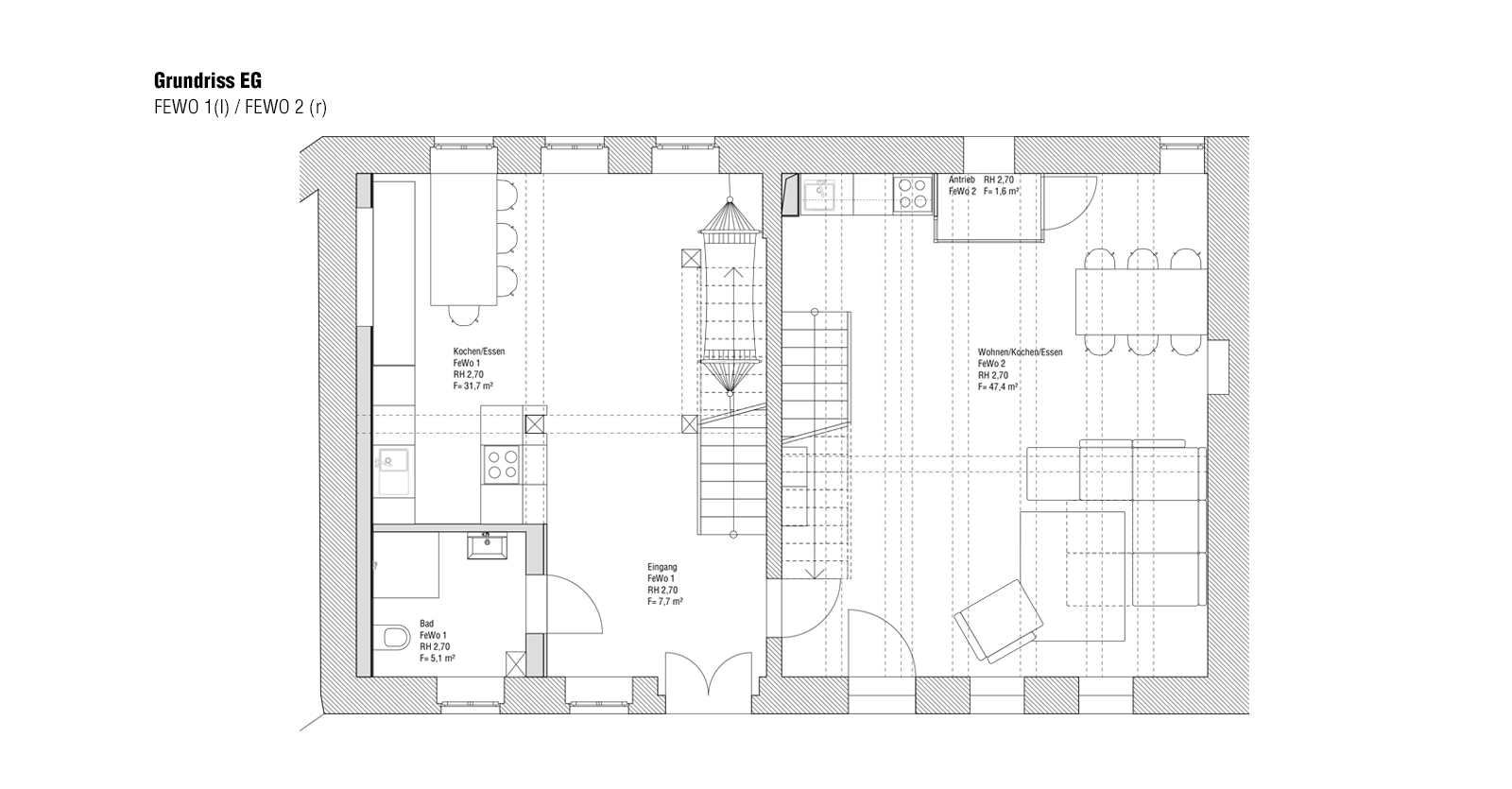
FEWO1+2-EG
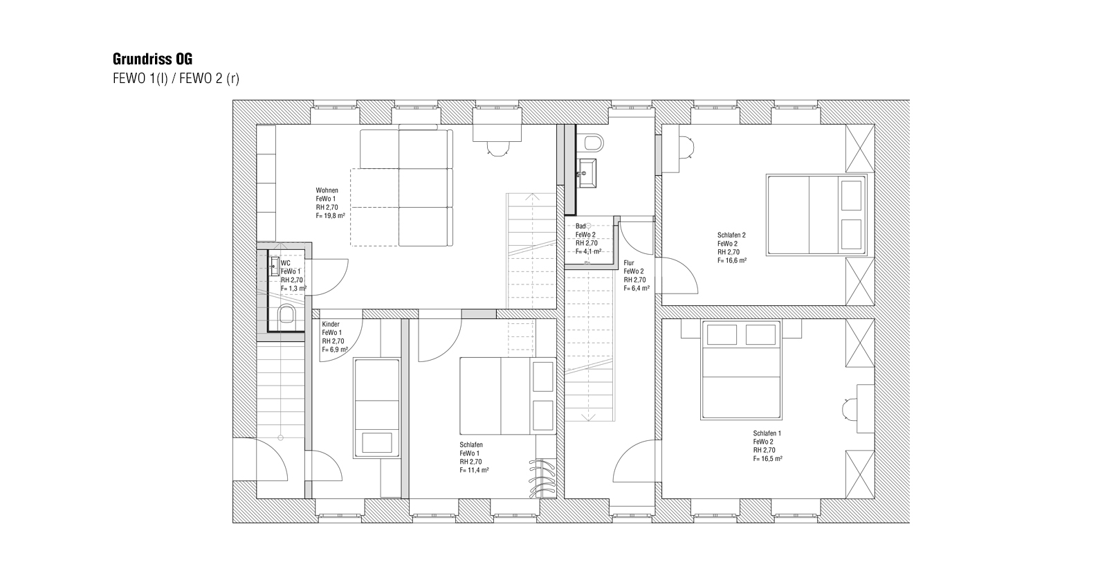
FEWO1+2-OG
FEWO1-Ansichten1
FEWO1_Rendering1
FEWO2-Deckblatt
FEWO2-Foto1
FEWO2-Foto2
FEWO2-Foto3
FEWO2-Foto4
FEWO2-Foto5
FEWO2-Foto6
FEWO2-Foto7
FEWO2-Foto8
FEWO2-Foto9
FEWO2-Foto10
FEWO2-Foto11
FEWO2-Rendering1
FEWO2_Rendering2
FEWODG-Deckblatt
FEWODG-Foto1
FEWODG-Foto2
FEWODG-Foto3
FEWODG-Foto4
FEWODG-Foto5
FEWODG-Grundriss
FEWODG-Ansicht1
FEWODG-Ansicht2
FEWODG-Bestand1
FEWODG-Rendering1
FEWODG-Rendering2
FEWODG-Rendering3

Wir nutzen Cookies auf unserer Website. Einige von ihnen sind essenziell für den Betrieb der Seite, während andere uns helfen, diese Website und die Nutzererfahrung zu verbessern (Tracking Cookies). Sie können selbst entscheiden, ob Sie die Cookies zulassen möchten. Bitte beachten Sie, dass bei einer Ablehnung womöglich nicht mehr alle Funktionalitäten der Seite zur Verfügung stehen.