Bildungsräume des Paritätischen Bildungswerks Magdeburg – neu strukturierte Büro- und Seminaretage

Paritätisches Bildungswerk // Magdeburg

Ein Träger für Erwachsenenbildung in Magdeburg erweiterte seine Räumlichkeiten um eine zusätzliche Etage, die funktional wie gestalterisch neu organisiert werden sollte. Die bestehende Struktur aus kleinteiligen Büroeinheiten entsprach weder zeitgemäßen Anforderungen an Bildungsarbeit noch dem Wunsch nach Austausch, Flexibilität und klarer Orientierung.

Ziel war eine räumliche Struktur, die konzentriertes Arbeiten, lebendigen Austausch und störungsfreien Seminarbetrieb gleichermaßen ermöglicht – offen, aber klar zoniert und mit eigener gestalterischer Identität.

Fertigstellung: 02/2020
Fotos: © Z’sAM Raumkonzepte

Zeitraum 2019–2020
Ort Paritätisches Bildungswerk, Magdeburg
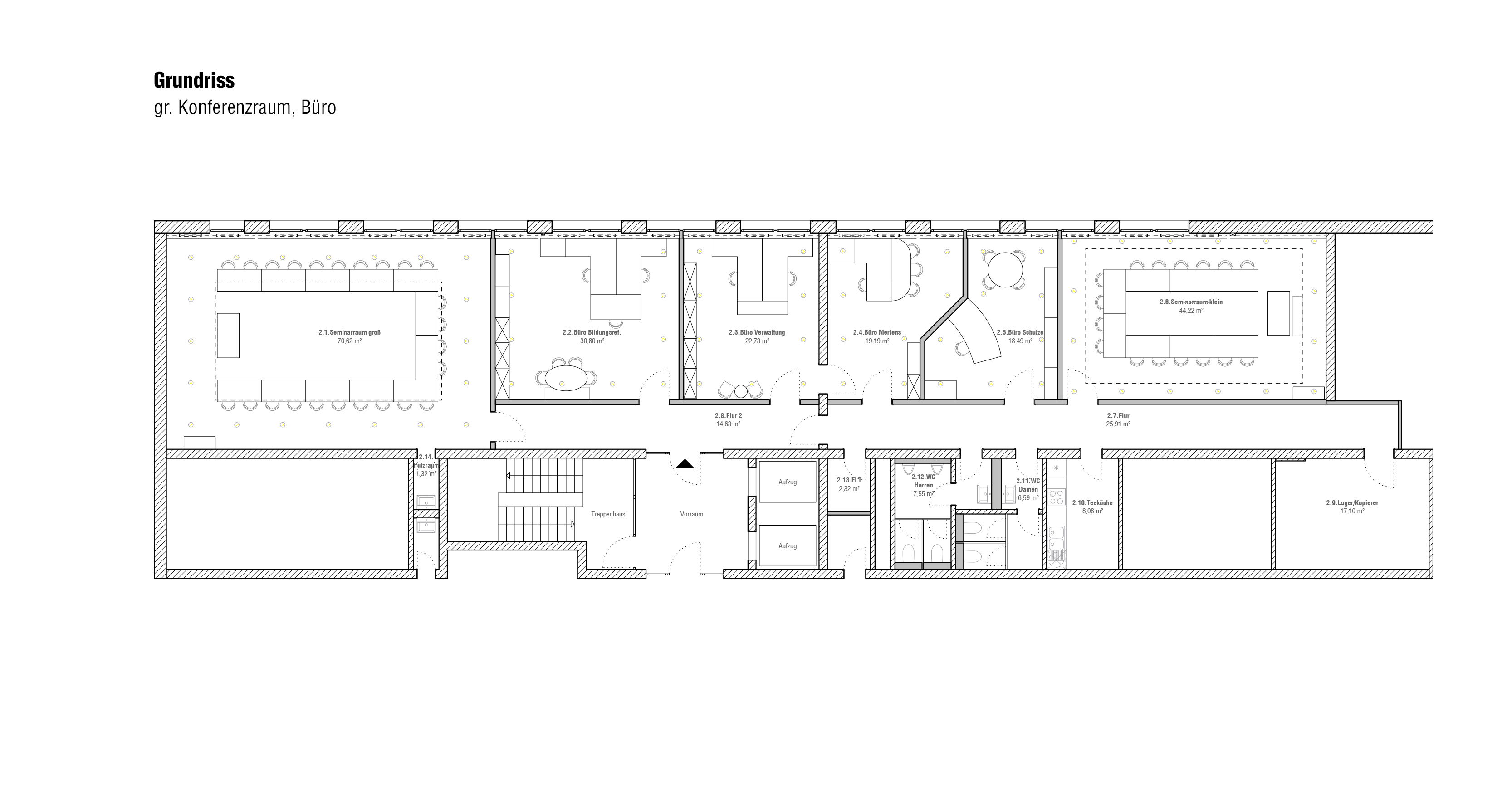
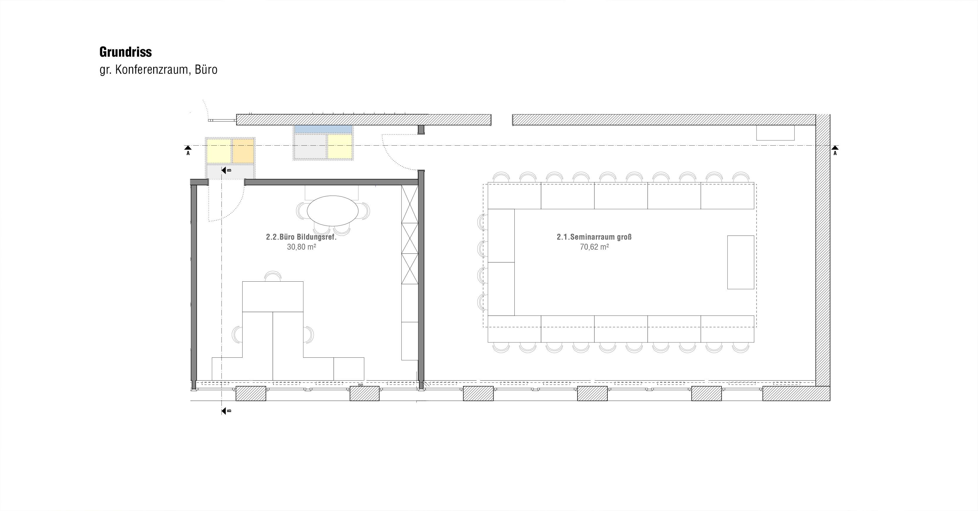
Nutzfläche ca. 265 m²
Nutzergruppe Erwachsenenbildung, Konferenz-/Büroräume
Leistungsumfang LPH1-3,5,8,9
Schwerpunkte funktionale Neuordnung, flexible Raumnutzung, Konferenzräume
Ziel / Besonderheiten Atmosphäre, Raumfluss, historische Einbindung
CTA-Button
PBW-Foto1
PBW-Foto2
PBW-Foto3
PBW-Foto4
PBW-Foto5
PBW-Foto6
PBW-Foto7
PBW-Foto8
PBW-Foto9
PBW-Foto10
PBW-Rendering1
PBW-Rendering1
PBW-Bestand1
PBW-Grundriss
PBW-Grundriss2
PBW-Ansicht

Ähnliche Projekte – Bildung und Begegnung

 

Weitere Projekte aus den Bereichen Arbeitswelten, Gastronomie und Ausstellung finden Sie in der Projektübersicht Gewerbe.

Wir nutzen Cookies auf unserer Website. Einige von ihnen sind essenziell für den Betrieb der Seite, während andere uns helfen, diese Website und die Nutzererfahrung zu verbessern (Tracking Cookies). Sie können selbst entscheiden, ob Sie die Cookies zulassen möchten. Bitte beachten Sie, dass bei einer Ablehnung womöglich nicht mehr alle Funktionalitäten der Seite zur Verfügung stehen.