Innenraumgestaltung Restaurant Jools Hamburg – klare Struktur und reduzierte Materialien

Jools - Café und Restaurant // Hamburg

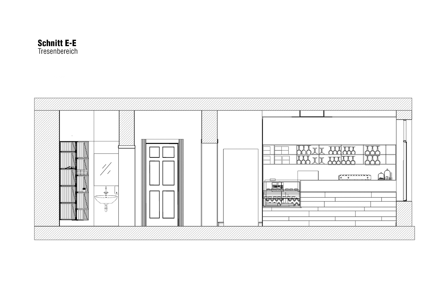
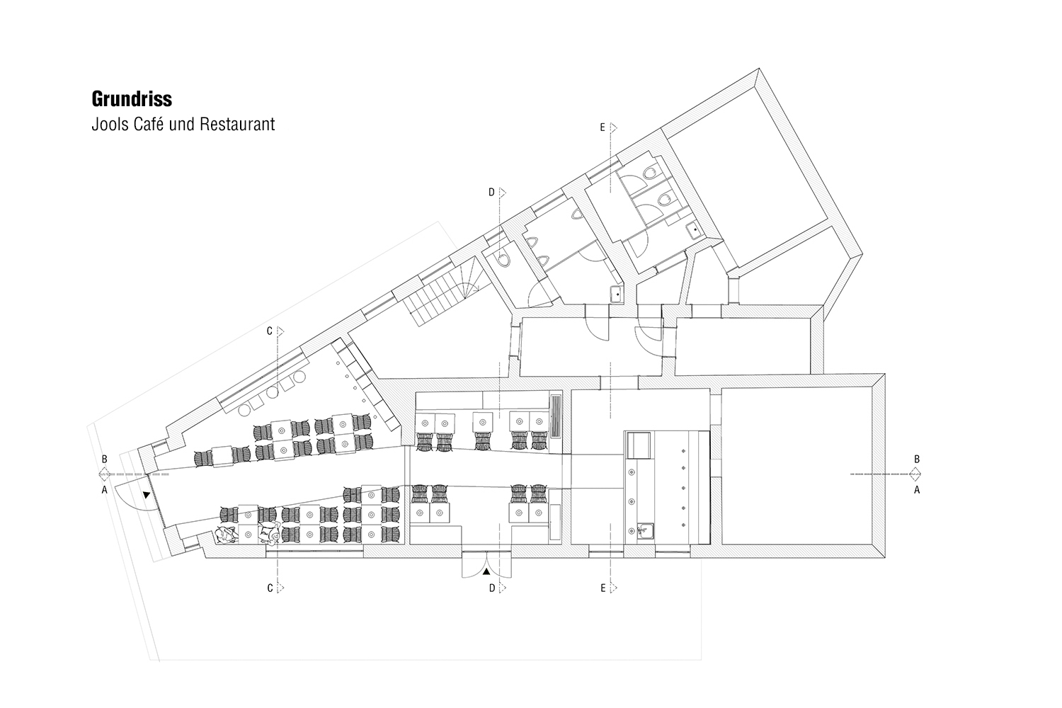
Das Café und Restaurant Jools in einem historischen Eckhaus in Hamburg-Ottensen erstreckt sich über drei hintereinander liegende Räume. Die Herausforderung lag in der Tiefenstaffelung des Grundrisses: Der zentrale Tresen befindet sich im hintersten Raum und sollte dennoch bereits beim Betreten als räumlicher Fokus wahrnehmbar sein.

Ziel war es, Orientierung zu schaffen und zugleich die Identität der jungen Gastronomie sichtbar zu machen. Der Tresen wurde als klarer Anziehungspunkt definiert, während die Abfolge der Räume bewusst als gestalterische Dramaturgie genutzt wurde.

Fertigstellung: 12/2014
Fotos: © M. Patze

Zeitraum 2013–2014
Ort Hamburg-Ottensen
Nutzfläche ca. 125 m²
Nutzergruppe Gastronomie
Leistungsumfang LPH1-3,5
Schwerpunkte Gastronomiegestaltung, Raumführung, CI-Konzept
Ziel / Besonderheiten klare Raumdramaturgie, Materialkonzept, Markenbezug
CTA-Button
Jools-Foto1
Jools-Foto2
Jools-Foto3
Jools-Foto4
Jools-Foto5
Jools-Foto6
Jools-PläneGR
Jools-AnsichtAA
Jools-AnsichtBB
Jools-AnsichtCC
Jools-AnsichtDD
Jools-AnsichtEE

Ähnliche Projekte – Gastronomie und Ladenflächen

Weitere Projekte aus den Bereichen Arbeitswelten, Gastronomie und Ausstellung finden Sie in der Projektübersicht Gewerbe.

Wir nutzen Cookies auf unserer Website. Einige von ihnen sind essenziell für den Betrieb der Seite, während andere uns helfen, diese Website und die Nutzererfahrung zu verbessern (Tracking Cookies). Sie können selbst entscheiden, ob Sie die Cookies zulassen möchten. Bitte beachten Sie, dass bei einer Ablehnung womöglich nicht mehr alle Funktionalitäten der Seite zur Verfügung stehen.